Urban Landscape Design, Masterplans

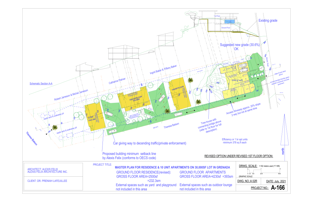
Masterplan Proposal — Residenital Development Project in Grenada

 

MORNE CAMPUS masterplan sketch for web
Masterplan Sketch..SALCC
Masterplan Proposal for 200 student lodging high school for boys in Malawi, Africa
Masterplan Architecural Resort Villas & Hotel

Keep scrolling down for all images; thanks

vsq

CONCEPTUAL SKETCH

vsq site plan
opsr news re square revised
alr vsq pic
alr vsq ftn samaler size
alr vsq before
Before
Int’l Competition:Mixed-use Masterplan for Southbank, South Africa

Bois D’Orange Village Hotel Masterplan

Leave a comment

This site uses Akismet to reduce spam. Learn how your comment data is processed.